目前,測量液位的方法很多,但在化工生產過程中,存在著許多特殊的環境介質,對這些具有腐蝕性或含有結晶顆粒、黏度大、易凝固的液體不易用普通差壓變送器,因介質往往把取壓元件腐蝕或堵塞,無法測到準確液位。通常情況下采用雙法蘭差壓變送器就能很好地解決這一問題。但由于雙法蘭差壓變送器價格昂貴,投資較大。由此采用單法蘭差壓變送器代替雙法蘭差壓變送器來達到生產測量的要求,節約成本40%。


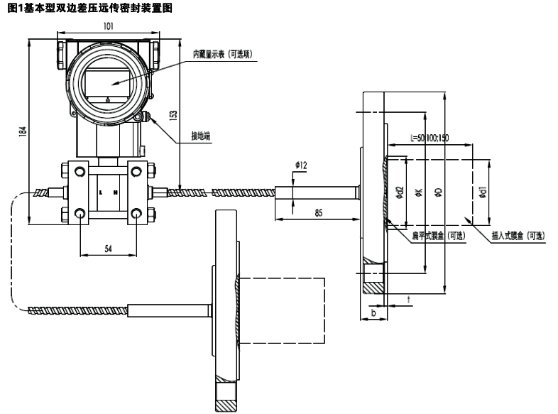
從雙法蘭差壓變送器和單法蘭差壓變送器結構示意圖對比中不難看出,單法蘭差壓變送器僅在正壓測(H側)有毛細管及法蘭,負壓側可以接導壓管,單法蘭差壓變送器的安裝方法也要跟這種結構相適應。
1、在不同液位測量中的替代和安裝
雙法蘭差壓變送器一般用于密閉容器的液位測量上。而在正常情況下,液位不會到達容器頂部,這樣就為單法蘭差壓變送器代替雙法蘭差壓變送器提供了可能性。在不同的介質和環境下,單法蘭差壓變送器替代雙法蘭差壓變送器的安裝方式是不同的,有代表性的有以下兩種:
①對于中溫以下無腐蝕或含有雜質顆粒的介質
在這種介質下,用單法蘭液位變送器(無毛細管)來替代雙法蘭毛細管差壓變送器。
a、在常溫下,如圖3,單法蘭液位變送器的正壓室凸法蘭與容器的低端法蘭相連,將容器的高端法蘭用盲板堵死。在容器頂部做一取壓口,用導壓管與單法蘭液位變送器的負壓室相連。變送器的量柱為:L=H×ρ;零點遷移量為:L0=h×ρ;在最低液位時,作用于變送器的靜壓為:△P0=h×ρ;在最高液位時,作用于單法蘭液位變送器的靜壓為:△P=H×ρ+h×ρ。這些公式中H為最高液位和最低液位的高度差;h為最低液位到變送器低端法蘭中心線的高度;ρ為容器內介質的密度。

b、在中溫度下,如圖4,將在容器頂部的取壓管與變送器之間加一隔離罐,加裝隔離液,這樣就避免了對單法蘭液位變送器的損壞。單法蘭液位變送器的量程不變,零點遷移量為:L0=h×ρ-h0×ρ0,公式中h0為隔離液高度;ρ0為隔離液密度。

②對于腐蝕性強、黏度大的介質及高溫介質
在這種情況下,用單法蘭差壓變送器(帶毛細管)來替代雙法蘭差壓變送器。
a、在常溫下,如圖5所示,將單法蘭遠傳差壓變送器帶毛細管的法蘭與容器的低端法蘭連接,從容器頂部取一導壓管與變送器負壓室相連。單法蘭差壓變送器的量程為L=H×ρ;零點遷移量為L0=h×ρ+h1×ρ1;在最低液位時,作用于變送器的靜壓為△P=h×ρ+h1×ρ1;在最高液位時,作用于變送器的靜壓為△P=H×ρ+h×ρ+h1×ρ1,公式中的h1為單法蘭差壓變送器正壓室中心線相對容器低端法蘭中心線高度;ρ1為單法蘭差壓變送器毛細管內介質密度。

b、在高溫下,如圖2b,在變送器與取壓管中間加裝隔離罐,以避免高溫對變送器的損壞。注意,這時所選用的隔離液為在此溫度下不沸騰的介質。變送器的量程不變,零點遷移量為:L0=h1×ρ1+h×ρ-h0×ρ0。

在不同的介質和環境下,用單法蘭差壓變送器替代雙法蘭毛細管差壓變送器進行液位測量,需根據溫度高低、腐蝕性強弱、黏度大小等因素來選擇安裝連結的方式,并加裝相應的設施。
作者:范瀟
